Tenji 360

Petit espace, grandes possibilités
– avec 360 pi²

L’essentiel du confort, au format compact

space_icon1

Préfabriqué

space_icon2

Éco-Resposable

Architecture Innovative

Autosuffisant

Le Tenji 360, d’une superficie de 360 pi², est pensé pour offrir un maximum de confort dans un format minimaliste. Parfait pour un chalet, un projet locatif ou une résidence secondaire, il allie design intelligent et savoir-faire québécois. Son architecture compacte s’intègre harmonieusement dans tout environnement naturel, tout en réduisant son empreinte écologique.

Vivre

Un intérieur lumineux et fonctionnel

L’intérieur du T360 offre une chambre fermée, une grande salle de bain vitrée avec douche spacieuse, et une cuisine en angle avec coin-repas intégré et rangement optimisé. Les matériaux sont écoresponsables : contreplaqué sans formaldéhyde, surfaces faciles d’entretien et finitions naturelles, pour un espace sain et durable.

Architecture

Flexibilité de construction

Le Tenji 360 peut être préfabricé en usine selon la norme CSA A277 ou assemblé en panneaux directement sur site. Cette flexibilité permet d’adapter les délais, le budget et la logistique à chaque projet, tout en assurant qualité et performance.

Économie

Énergie et eau en toute autonomie

Grâce à notre partenariat avec Phase3 Energy, le T360 peut intégrer des panneaux solaires haute performance, le système complet FranklinWH (aPower 2 + aGate 2), ainsi que la récupération et le traitement des eaux. Résultat : une autonomie énergétique et hydrique complète, soutenue par les subventions du gouvernement du Québec.

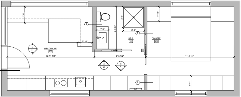
Plan d'étage

Un plan pensé pour la vie quotidienne

Le plan du T360 optimise chaque mètre carré : mudroom pratique à l’entrée, cuisine fonctionnelle avec espace repas, chambre fermée, et salle de bain généreuse. Un agencement fluide qui offre une véritable sensation d’espace, même dans un format compact.

Site web en Construction!

Merci pour l’intérêt que vous portez à Constellations. Nous sommes une petite start up et travaillons fort pour finaliser notre site web. Revenez bientôt pour avoir accès à cette section du site.

Une question?
Appelez nous au
514-572-8953