Tenji 360

Small space, big possibilities
– with 360 sq. ft.

Comfort Essentials in a Compact Form

space_icon1

Préfabriqué

space_icon2

Éco-Resposable

Architecture Innovative

Autosuffisant

The Tenji 360 (360 sq. ft.) is designed to deliver maximum comfort in a minimalist footprint. Ideal as a cabin, rental unit, or secondary residence, it blends smart design with Quebec craftsmanship. Its compact architecture integrates seamlessly into any natural setting while minimizing environmental impact.

Living

Bright, Functional Interior

Inside, the T360 features a private bedroom, a spacious glass-enclosed bathroom, and a corner kitchen with integrated dining nook and optimized storage. Sustainable materials—formaldehyde-free plywood, low-maintenance surfaces, and natural finishes—create a healthy, lasting living space.

Architecture

Flexible Construction

The T360 can be factory-built to CSA A277 standards or assembled in panel sections on-site. This flexibility allows you to adapt timelines, budgets, and logistics while ensuring quality and performance.

Saving

Energy & Water Independence

Through our partnership with Phase3 Energy, the T360 can integrate high-performance solar panels, the full FranklinWH system (aPower 2 + aGate 2), as well as water collection and treatment systems. The result: full energy and water independence, supported by Quebec government grants.

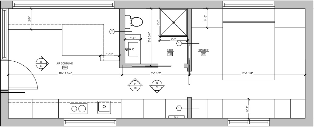
Plan d'étage

A Layout Designed for Everyday Life

The T360 floor plan makes the most of every square foot: a practical mudroom at the entrance, a functional kitchen with dining area, a private bedroom, and a spacious bathroom. A fluid layout that feels open and airy, even in a compact footprint.

Site web en Construction!

Merci pour l’intérêt que vous portez à Constellations. Nous sommes une petite start up et travaillons fort pour finaliser notre site web. Revenez bientôt pour avoir accès à cette section du site.

Site web en Construction!

Merci pour l’intérêt que vous portez à Constellations. Nous sommes une petite start up et travaillons fort pour finaliser notre site web. Revenez bientôt pour avoir accès à cette section du site.

Une question?
Appelez nous au
514-572-8953