Unité mobile en mode dortoir et lancement du projet pilote intégré
À la suite de la présentation du premier prototype ABITA, nous avons amorcé un processus d’itération et de co-réflexion continue, fondé sur les apprentissages issus de la nanotecture développée par Constellations, sur les réalités du terrain ainsi que sur les besoins exprimés par les intervenants et les personnes en situation d’itinérance.
C’est dans cette dynamique que nous présentons ABITA R6, une nouvelle version en format dortoir de 6 couchages, accompagnée du lancement du projet pilote intégré OASIS 01.

Une solution intégrée — au-delà de la structure
Issu d’une collaboration entre partenaires publics, privés et communautaires, OASIS 01 ne se limite pas à une unité bâtie. Il combine :
- Une unité mobile ABITA R6
- Des services psychosociaux
- Une stratégie d’opération terrain structurée
OASIS 01 est conçu comme une plateforme d’intervention rapide, déployable là où les besoins sont les plus urgents. Il offre un espace de repos, de répit et d’intervention de première ligne, contribuant à la stabilisation des personnes et à l’apaisement de l’espace public.
Il agit comme un pont entre la rue et la réintégration sociale.
Objectifs du projet pilote
- Recueillir des données mesurables
- Obtenir des retours terrain auprès des personnes concernées
- Soutenir les intervenants communautaires
- Évaluer l’efficacité opérationnelle et l’impact social

Pourquoi un format dortoir ?
Les constats terrain démontrent que la demande dépasse largement la capacité des solutions individuelles existantes, tandis que le financement demeure limité.
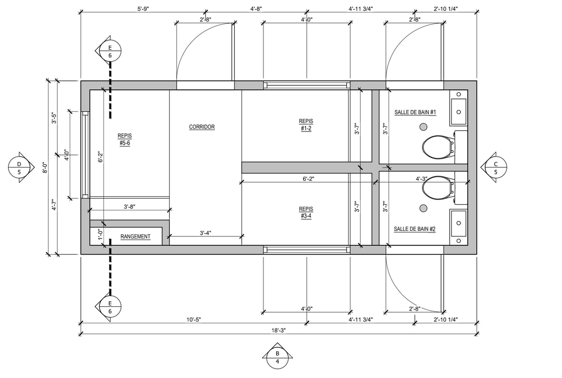
Afin de rejoindre un plus grand nombre de personnes de manière continue et structurée, ABITA R6 a été développé en format dortoir mobile intégrant :
- 144 pi² d’espace optimisé
- 6 couchages accessibles en continu
- 2 toilettes accessibles 24/7 (rendus 3D à titre informatif)
L’unité studio demeure pertinente dans certains contextes, mais le modèle dortoir permet un impact social élargi à moindre coût.
(Les rendus sont présentés à titre indicatif.)


La nanotecture au service de l’intervention sociale
OASIS 01 repose sur un consortium de partenaires publics, privés et à but non lucratif. Cette approche mutualisée permet une intervention intégrée où chaque service et chaque opération sont pensés pour maximiser l’impact social.
Le design de l’ABITA R6, développé par Constellations, illustre une optimisation rigoureuse de l’espace tout en préservant dignité, sécurité et robustesse.
Un impact mesurable à l’échelle annuelle
Avec 6 couchages continus et 2 toilettes accessibles :
- 6 570 périodes de repos structurées par année (cycles de 8 heures)
- 26 280 périodes de pause ou de répit annuelles
Cette approche permet une évaluation claire et mesurable des retombées sociales.

Espaces complémentaires d’intervention
Deux tentes OASIS complémentaires sont prévues :
- Une tente administrative et d’intervention pour les équipes terrain
- Une tente répit chauffée permettant aux personnes de se reposer et se réchauffer
Gestion intégrée des déchets (tri, recyclage, compostage).
Coûts estimés :
- Environ 27 $ par période de repos
- Environ 1,47 $ par période de pause
OASIS 01 vise à démontrer qu’une intervention structurée, mesurable et humaine peut générer un impact durable à faible coût, tout en améliorant la cohabitation et la dignité des personnes en situation d’itinérance.

Pourquoi OASIS 01 est nécessaire
Données récentes (avril 2024) :
- 9 307 personnes en situation d’itinérance visible au Québec
- +15 % depuis 2022
Malgré l’augmentation des capacités d’hébergement, le taux d’occupation des refuges est en baisse, révélant un décalage entre les modèles actuels et les besoins observés sur le terrain.
OASIS 01 a été conçu pour répondre à cet écart.

Présence terrain et déploiement
ABITA a été présenté au Conseil municipal d’Outremont.
Nous recherchons actuellement des partenaires publics et évaluons différents scénarios de déploiement à l’échelle du Québec.
Les autorisations municipales et partenariats institutionnels seront requis avant tout déploiement.
Collaboration académique
Une collaboration est en développement avec le milieu académique.
Philippe Terrier, ing., Ph. D., professeur en ingénierie du développement durable à l’ÉTS, a manifesté son intérêt à contribuer à l’intégration de solutions low-tech, robustes et adaptées aux réalités terrain.
Objectif : positionner ABITA comme projet pédagogique dès 2026 afin d’enrichir la réflexion collective et réduire l’empreinte environnementale.

Cadre réglementaire
Constellations agit exclusivement à titre de studio de design et de recherche.
La fabrication, la préparation du site et l’installation des unités doivent être réalisées par des intervenants détenant les licences appropriées, conformément à la réglementation en vigueur au Québec.
Les rendus visuels sont présentés à titre indicatif.
Contribuez au projet pilote
Nous lançons un appel à la communauté.
Chaque dollar donné est doublé par le Fonds d’impact.
100 $ donnés = 200 $ investis dans ABITA.
Votre contribution soutient :
- La recherche et le développement
- Les démarches auprès des municipalités
- Le déploiement de la première cohorte terrain
Merci de soutenir une innovation structurée, humaine et mesurable.