APART

The New Generation of
Modular Social Housing

APART — Living Differently, Together

space_icon1

Préfabriqué

space_icon2

Éco-Resposable

Architecture Innovative

Autosuffisant

APART is a modular solution for social and community housing, designed to address the major challenges facing many municipalities: lack of affordable units, rising construction costs, and insufficient adapted social housing.

The Exterior

A Simple, Bright, and Deeply Human Architecture

APART’s architecture is built on a clean, functional, and warm design where every element contributes to creating bright, dignified living environments. The modules use natural materials such as wood, generous windows, and fluid circulation that enhances the sense of space. The energy-efficient envelope, durable foundations, and standardized formats ensure performance, comfort, and fast construction. APART provides accessible, reproducible architecture tailored to community social needs.

The Interior

Interiors Designed for Real Life, Adapted to Every Community

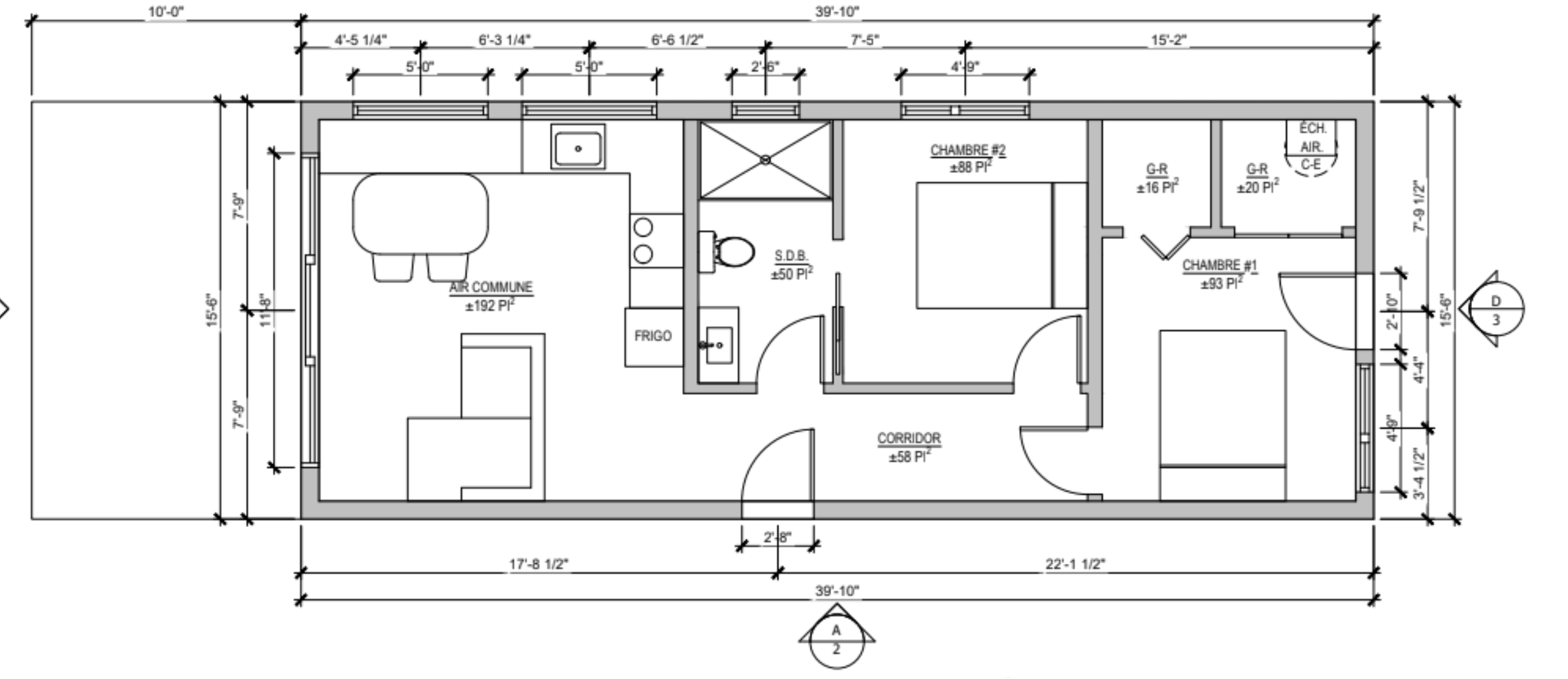
APART interiors are designed to be bright, functional, and warm. The 12×30 module offers a compact and fluid layout, ideal for individuals or transition housing. The 16×40 format offers two bedrooms and two bathrooms, supporting privacy and family cohabitation. Each unit maximizes natural light, comfort, and ease of maintenance. Thanks to our modular systems, APART can be fully adapted to the specific needs of municipalities, nonprofits, and social developers.

Vision

Complete Support, From Concept to Delivery

APART provides integrated support to municipalities, nonprofits, and social developers. We guide each phase: needs analysis, construction system selection, financial structuring, permitting, partner coordination, and pilot-project deployment. Our role is to simplify implementation, build the right partnerships, and ensure transparent governance. APART becomes a turnkey tool powered by a constellation of local actors.

The Future

Optimized Floor Plans Inspired by Nanotecture

APART applies the principles of nanotecture: doing more with less space by maximizing functionality, light, and circulation. By optimizing every centimeter, we reduce the footprint without compromising comfort, allowing investment in integrated furniture, durable materials, and a high-performance building envelope. This approach creates resilient, energy-efficient units that are pleasant to live in while controlling construction and maintenance costs.

Site web en Construction!

Merci pour l’intérêt que vous portez à Constellations. Nous sommes une petite start up et travaillons fort pour finaliser notre site web. Revenez bientôt pour avoir accès à cette section du site.

Site web en Construction!

Merci pour l’intérêt que vous portez à Constellations. Nous sommes une petite start up et travaillons fort pour finaliser notre site web. Revenez bientôt pour avoir accès à cette section du site.

Une question?
Appelez nous au
514-572-8953