ABITA

Mobile and sustainable
housing that restores
dignity and hope.

Reinventing emergency housing through design and technology

space_icon1

Préfabriqué

space_icon2

Éco-Resposable

Architecture Innovative

Autosuffisant

The objective of ABITA, initiated through discussions between Constellations Espaces Innovants and Santé en Amont, is to create a new generation of connected mobile micro-habitats designed to provide safe, human-centered and rapidly deployable spaces for people experiencing crisis situations, while giving cities and community organizations practical tools to better coordinate social interventions.

« Allier architecture, technologie et humanité : c’est ce qui rend ABITA unique. »

— François Turgeon, CEO Constellations

Thank you to all our partners and sponsors.

An ecosystem already mobilized for rapid deployment

Exterior

Mobile, Durable and Human-Centered Architecture

The ABITA pilot unit, made possible through the major contribution of Précisions Provençal, is designed with a lightweight yet durable aluminum structure built for four-season use. It can be transported easily and deployed quickly according to the needs of each community.

Designed for social intervention, emergency response and transitional housing, the unit can integrate energy autonomy systems developed with Phase 3 Énergie and Paul Dionne, including solar panels, smart battery systems and off-grid solutions, along with intelligent connectivity features and flexible configurations adapted to the realities of municipalities and community organizations.

The Interior

A Human-Centered Space Built Through Community Collaboration

The interior of the ABITA pilot unit was made possible through the involvement of young RBQ-certified entrepreneurs, including Simon Imbeault and M.A. Brown, who contributed to the interior finishing of the project.

The prototype also came to life thanks to the participation of partners such as Fenplast for the windows and doors, and Luxor Collection for the cabinetry and integrated furniture contributions.

Designed to provide comfort, dignity, and functionality, the interior of ABITA emphasizes durable materials, abundant natural light, and a Low Tech approach adapted to the realities of social intervention and temporary housing, with additional support from students of the LIDD laboratory at École de technologie supérieure.

Vision

A Connected Ecosystem for Social Housing

A first ABITA prototype will be deployed and tested in Montréal in 2026 in collaboration with community organizations and social sector partners. This pilot phase will evaluate how the system integrates into different urban contexts, validate real-world uses and operational needs, and assess the model’s ability to provide safe, flexible and rapidly deployable human-centered spaces.

The Future

Toward ABITA Collectif

The objective of this initiative is to gather field-based insights in order to continuously improve the ABITA system. Expected outcomes include optimizing production and operational costs, improving energy autonomy strategies, and developing low-tech solutions that simplify the integration of units within urban environments. This iterative approach will help prepare future versions of the project for larger-scale deployment across Quebec.

Technical Sheet

ABITA R1
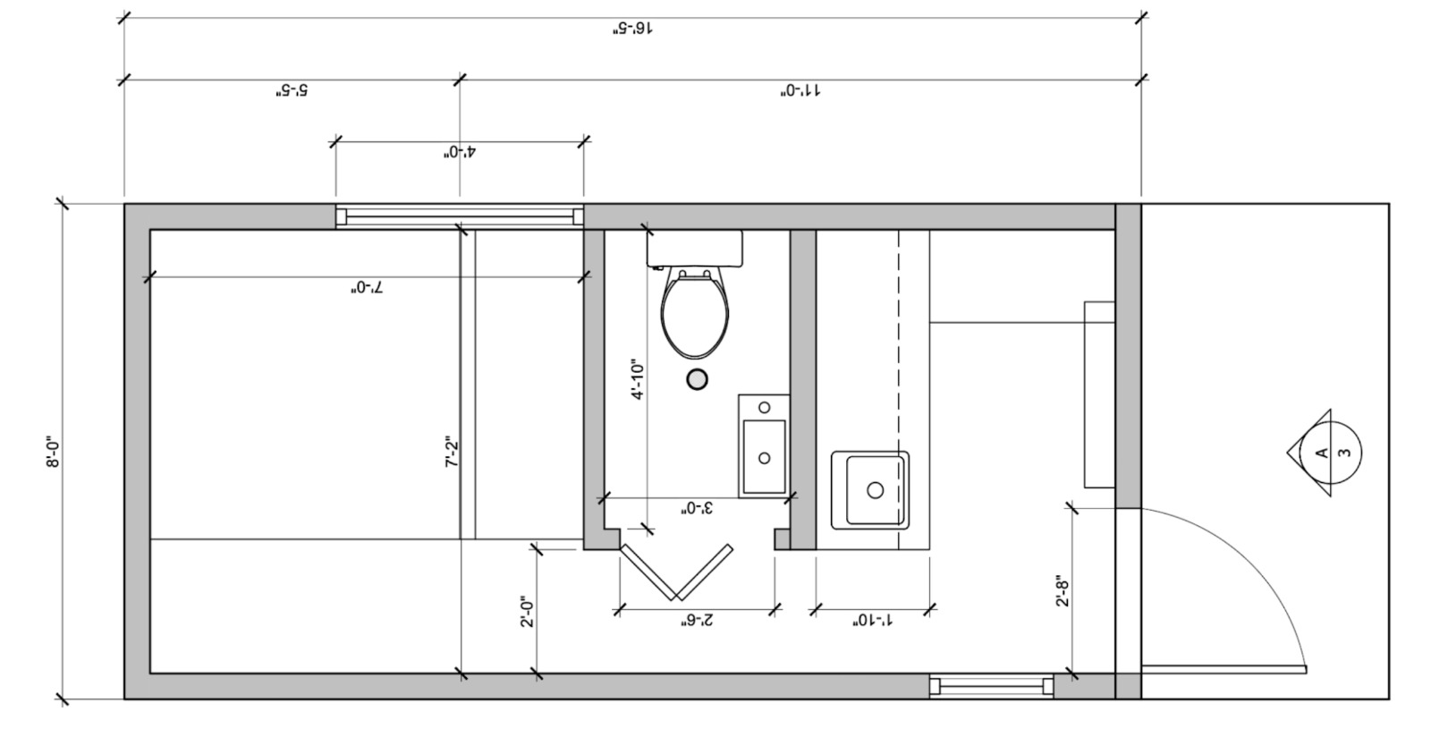
Living Area
176–220 sq.ft
Capacity
4–6 people
Exterior Dimensions
8 x 22 ft
Foundation
Mobile platform
Structure
Lightweight frame
Exterior Finish
Black aluminum
Interior Finish
Sustainable plywood
Insulation
Four-season rated
Lighting
Integrated LEDs
Electrical Panel
Smart system
Energy
Solar hybrid
Flooring
Commercial vinyl
Kitchen
Compact kitchenette
Bathroom
Integrated shower
Sleeping Areas
Flexible layouts
Ventilation
Mechanical airflow
Connectivity
USB / Wi-Fi
Deployment
Under 24h
Usage
Mobile shelter
Key Features
Low Tech
En savoir plus sur ABITA

Laissez vos coordonnées pour recevoir notre présentation officielle. Un membre de notre équipe vous contactera.

Site web en Construction!

Merci pour l’intérêt que vous portez à Constellations. Nous sommes une petite start up et travaillons fort pour finaliser notre site web. Revenez bientôt pour avoir accès à cette section du site.

Site web en Construction!

Merci pour l’intérêt que vous portez à Constellations. Nous sommes une petite start up et travaillons fort pour finaliser notre site web. Revenez bientôt pour avoir accès à cette section du site.

Une question?
Appelez nous au
514-572-8953